Galleries
About
Contact
Galleries
About
Contact
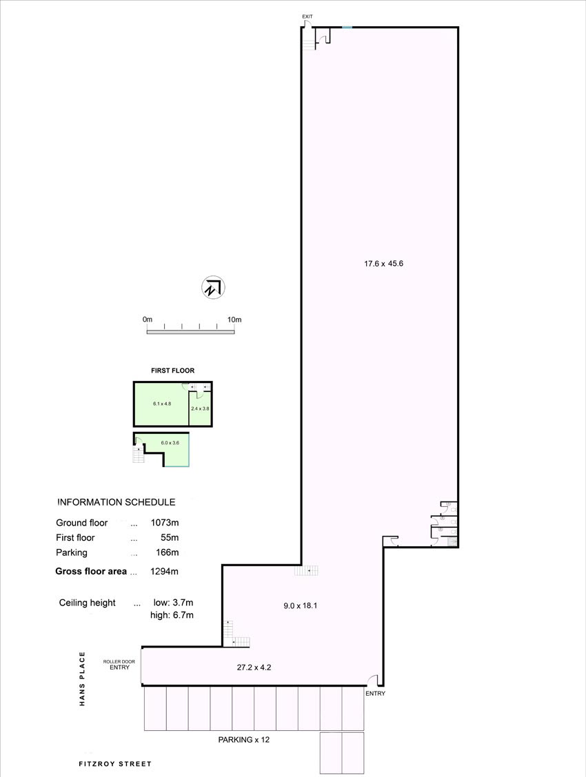
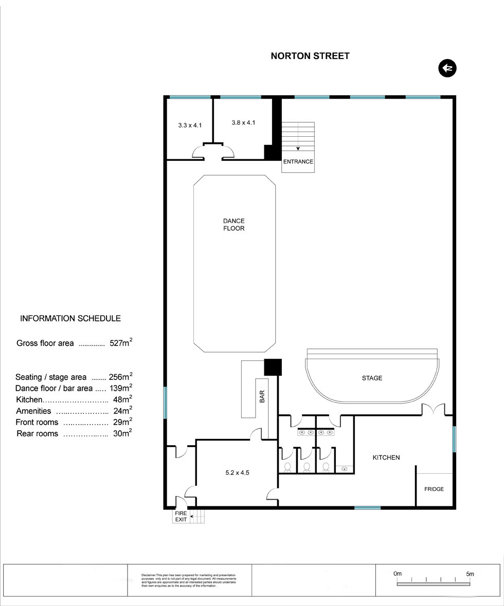
FLOOR PLANS
↑
Back to Top